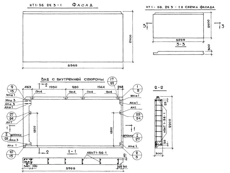
НТ1-56.29.3-1л

Чертеж изделия:
Чертеж НТ1-56.29.3-1л
Характеристики изделия:
ПараметрЗначение
Длина5595 мм
Ширина300 мм
Высота2900 мм
Масса6600 кг
Нормативный документСерия 1.132-1

НТ1-56.29.3-1л   Наружная стеновая панель торцевая по Серии 1.132-1.